Commercial
Rushey Green
Previously an old, ramshackle second-hand cooker shop, the site was brought to us by a client who intended to redevelop it as part of their retirement investment portfolio.
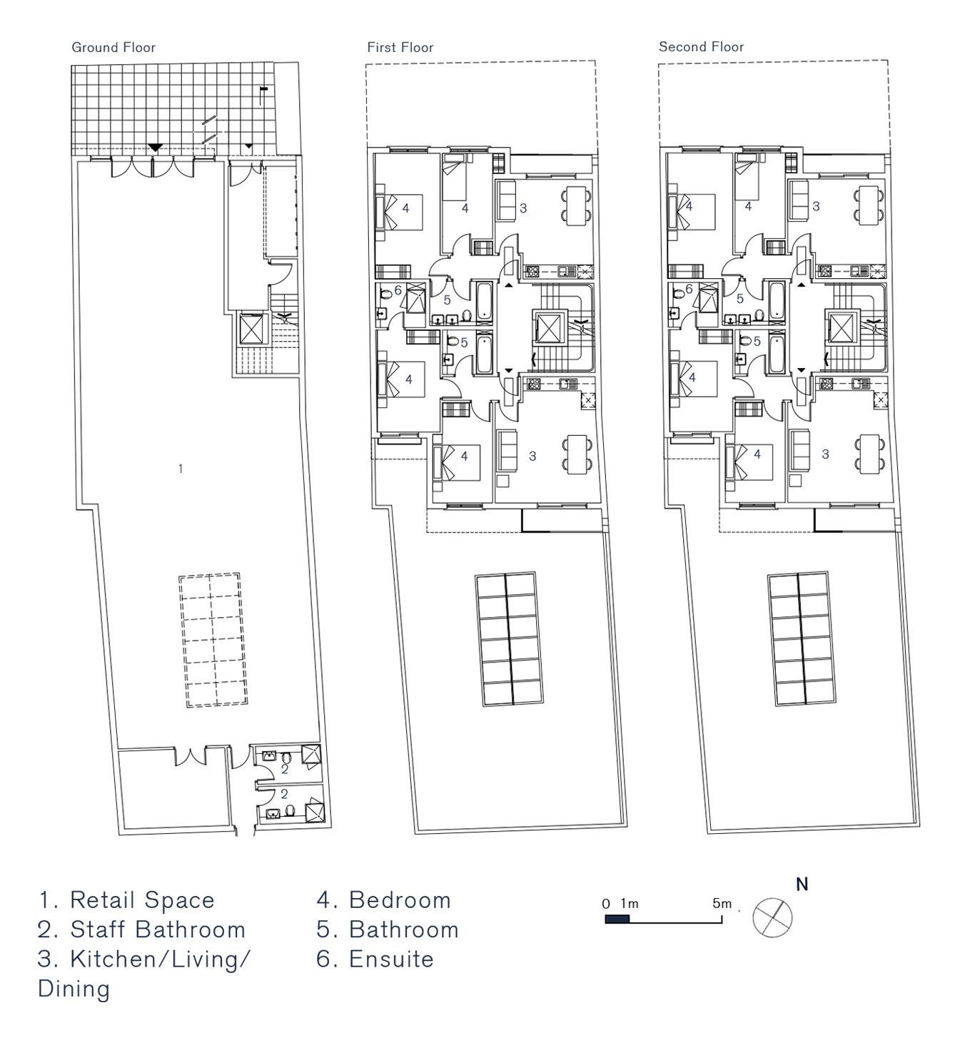
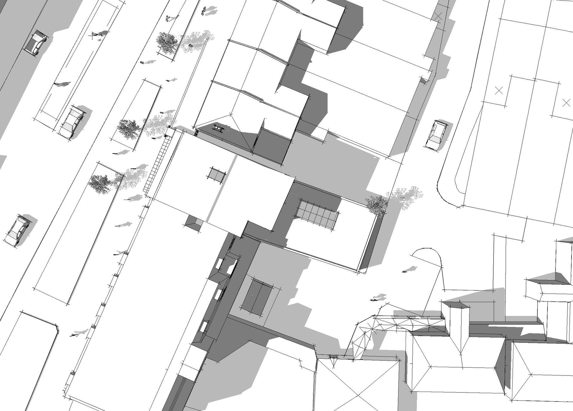
The development involved the demolition of the existing discount cooker shop and the erection of a four-storey mixed-use building, with one retail space on the ground floor and six residential units on the upper floors. Located within the busy Catford High Street, it was crucial that, to achieve planning permission, the design acknowledged the local topography and offered a positive contribution to the street.
We were commissioned for a planning-only outcome with the aim of maximising the sales potential of the site.

As part of this process, RDA engaged in effective consultation with the residents of the adjoining sheltered housing scheme to generate support for the project. We eventually proposed six residential units above a retail space at ground floor level, adding considerable value to the property for our client, who owned the freehold.
Following a successful presentation to the planning committee, RDA secured planning consent for the scheme on the first attempt, a result driven by the strength of the design and the support generated through our consultation process.
The approved development delivers six new homes on this sought-after high street and makes a positive contribution to the architectural character of the streetscape. The strong reception during the committee hearing later enabled our client to sell the property - together with the approved scheme - for three times its original value.





Ask an expert
Book a free consultation today with Richard Dudzicki, RDA's director, founder and lead architect.
Ease your mind and take the first step towards your future home with confidence. No commitment, flexible timings.









