Commercial
Slough
New residential building delivering 37 homes within a regenerated urban site
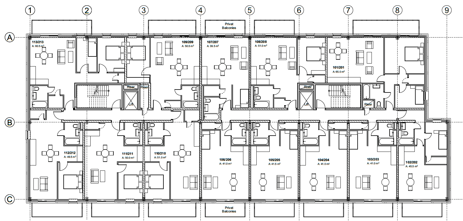
This proposal introduces a new part four and part three-storey residential building to the rear of Atria House, occupying an area formerly used for surface car parking. The development builds on the site’s ongoing transition from office to residential use and, together with works already underway, contributes to the delivery of 37 new homes within a highly sustainable and well-connected urban location.

The building has been carefully designed in response to pre-application advice, with its height reduced and stepped down towards Hayling Close to ensure it sits comfortably within its surroundings.
A varied mix of 37 studios, one- and two-bedroom apartments is provided, all meeting minimum internal space standards and increasing housing choice on the site. The design draws on the red brick palette of Atria House and neighbouring buildings, with grey metal detailing used to visually link the new and existing elements of the development.

Residential amenity is enhanced through the provision of a new communal landscaped space to the east of the building, connected to established pedestrian routes. Under-croft parking and compliant refuse and cycle storage are incorporated without affecting the parking provision secured for the wider scheme.
Affordable housing forms a key part of the proposal, with 30% of the new homes delivered as social rented units, alongside additional affordable provision. Overall, the development makes efficient use of a previously developed site, accords with local and national planning policy, and delivers high-quality new homes in line with the Council’s objectives for sustainable urban growth.


Ask an expert
Book a free consultation today with Richard Dudzicki, RDA's director, founder and lead architect.
Ease your mind and take the first step towards your future home with confidence. No commitment, flexible timings.









