Commercial
Warham Street
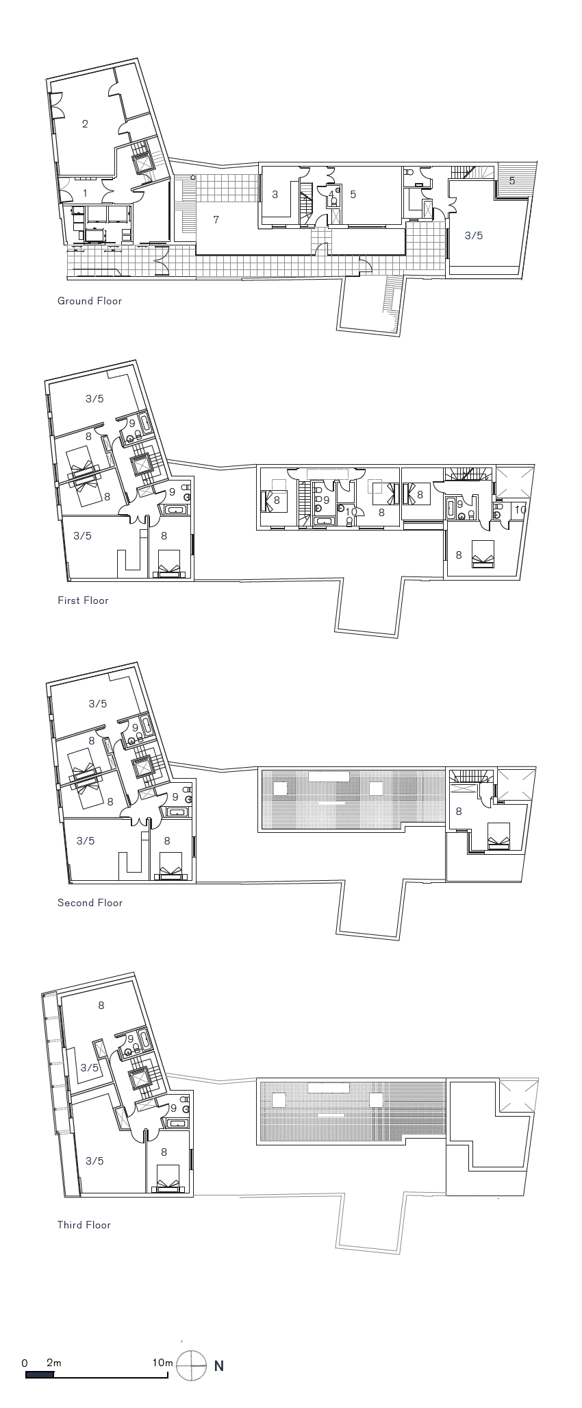
A client of came to us after purchasing a large site with a derelict building on a small residential street near to Oval Station.
Our proposed scheme involved the demolition of the existing derelict buildings to develop nine sustainable units, constructed from structural insulated panels (SIP). The development provides a mixed tenure and comprises three houses, six flats and a commercial retail unit at ground floor level, all with amenity space to the rear.
The scheme is on the junction of a Conservation Area, prompting the design of a glass clad atrium which acts as a bridge between the differing styles of the adjoining properties. Our client went on to develop a furthered iterated design of our proposal and was quickly fully inhabited.

Ask an expert
Book a free consultation today with Richard Dudzicki, RDA's director, founder and lead architect.
Ease your mind and take the first step towards your future home with confidence. No commitment, flexible timings.









