Commercial
Manor Mews
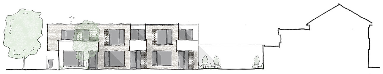
Transforming an underused backland plot into a contemporary, people-focused place to live and shop, this project delivers four mews starter homes alongside a revitalised retail unit on brownfield land behind a busy shopping parade.
We were first approached in 2017 to unlock the site’s potential in Croydon, reimagining a cramped and poorly developed space as a high-quality residential scheme. Following a challenging planning process, we secured permission to convert the existing shop into two flats and to build a large mews development to the rear.


Constrained Site: Build
The proposal relates to a tight backland/mews site with limited access from the rear lane, creating logistical and servicing constraints during both construction and occupation. The site’s close proximity to neighbouring properties also requires careful consideration of the relationship between buildings, particularly in respect of overlooking and potential privacy concerns for surrounding residents.


The project successfully reorganised previously disjointed commercial premises, reinstating a traditional ground-floor retail unit while maximising the development potential of the surrounding yard. Addressing the need for more two- and three-bed homes in the area, the scheme was carefully designed to navigate tight site constraints, avoid overlooking, and prevent any sense of overdevelopment.

Three single-aspect mews homes were completed, each providing generous open-plan living spaces, private balconies, and secluded gardens. Every home meets or exceeds London Plan minimum space requirements and complies with Lifetime Homes standards. The retention and refurbishment of the shop unit, along with the conversion of its upper parts into an additional two-bed, four-person flat, further enhances the streetscape and contributes meaningfully to local housing need.
Across the mews, thoughtfully positioned balconies provide private amenity for residents while maintaining neighbour privacy, ensuring a high-quality living environment throughout the development.

Ask an expert
Book a free consultation today with Richard Dudzicki, RDA's director, founder and lead architect.
Ease your mind and take the first step towards your future home with confidence. No commitment, flexible timings.












